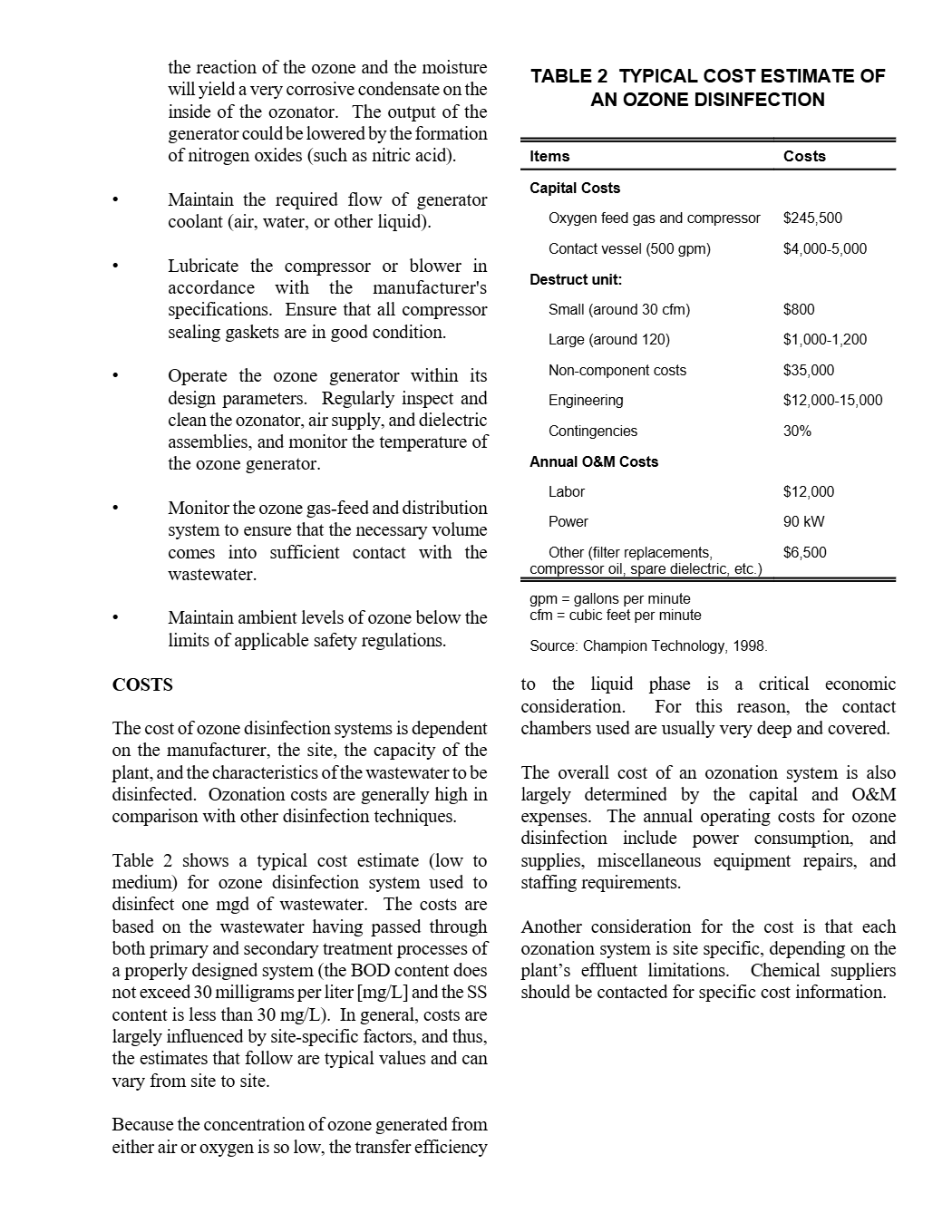
Tài liệu hướng dẫn của EPA này giải thích cách thức khử trùng bằng ozone hoạt động trong xử lý nước thải và lý do tại sao ozone được coi là chất oxy hóa mạnh mẽ để tiêu diệt vi khuẩn, vi rút và các tác nhân gây bệnh khác. Ozone được tạo ra tại chỗ vì nó không ổn định, và tài liệu mô tả các giai đoạn chính của hệ thống ozone, bao gồm chuẩn bị khí cấp, tạo ozone, tiếp xúc với ozone và phân hủy ozone. Tài liệu cũng nhấn mạnh rằng hiệu quả khử trùng phụ thuộc rất nhiều vào liều lượng ozone, sự pha trộn, thời gian tiếp xúc và sự truyền ozone hiệu quả vào nước.






